Lot 18 - The Rusty
2168 Bellflower Drive
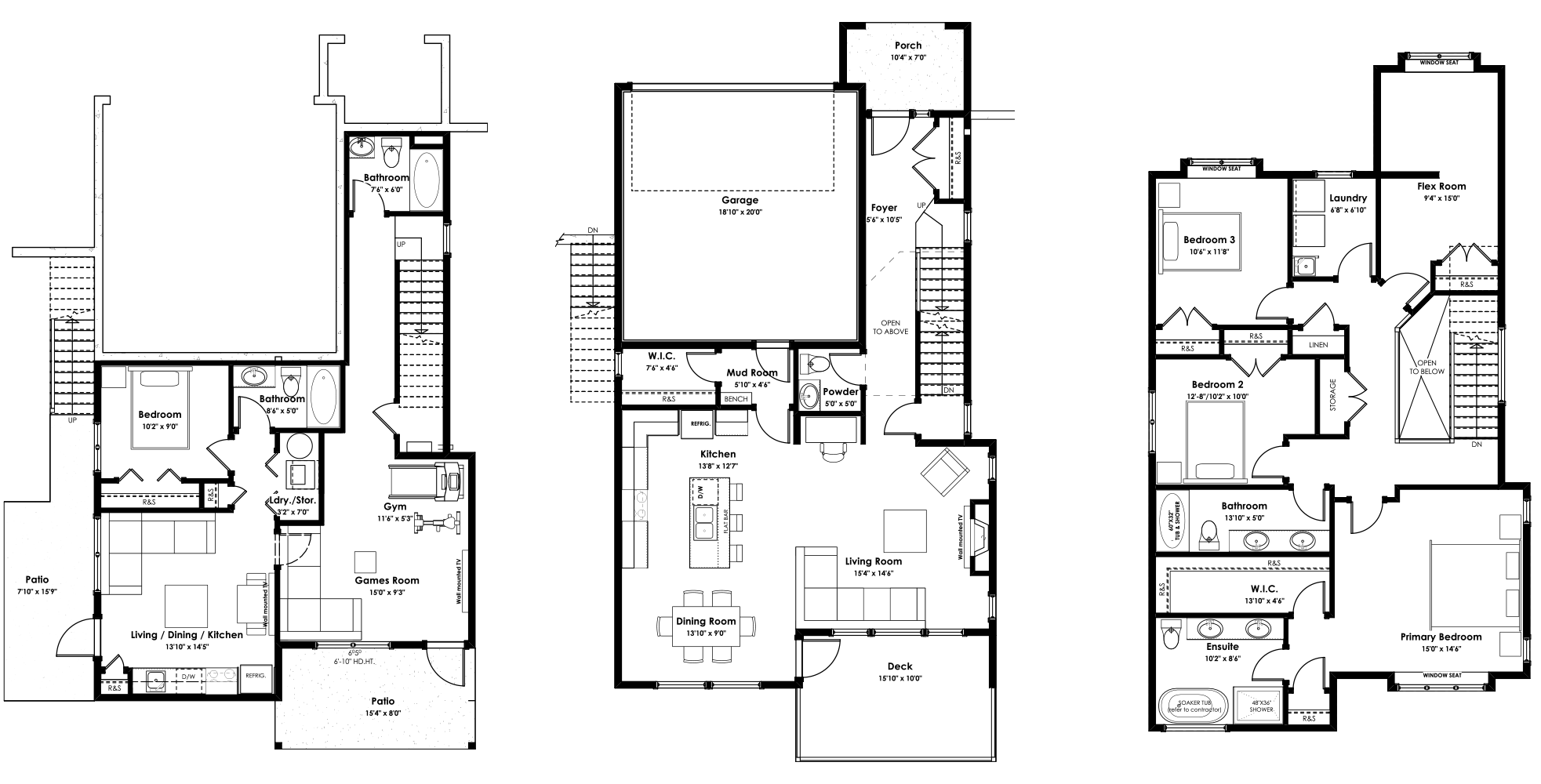
4 bedroom, 4.5 bath including 1 bedroom suite 3,054 sq. ft.

The Rusty
$1,522,800
The 'Rusty' offers 3,054 square feet of carefully planned living space, with a 1-bedroom mortgage helper suite in the lower level. The open concept main floor living area features a gorgeous living room, professionally designed kitchen and a mud room off the garage with a large walk-in storage closet. Step out the back door onto the great covered deck overlooking the landscaped south-facing back yard with ridge line views.
Upstairs includes a beautiful master suite and three more bedrooms. The large master bedroom has a vaulted ceiling and an impressive ensuite with heated tiles, soaker tub and spa-like shower. There’s a proper laundry room with sink and a window.
The finished lower level includes a games room, full bath, and storage for the principal residence, and a well-appointed one-bedroom suite with excellent parking and a very private, landscaped patio entrance.
Floorplans
The Rusty - NOW SELLING

4 bedroom, 4.5 bath including 1 bedroom suite
Lower Floor ~ 916 sq. ft. | Main Floor ~ 891 sq. ft. | Upper Floor ~ 1,247 sq. ft.
Total: 3,054 sq. ft.