Lot 25 - The Delilah
2167 Bellflower Drive
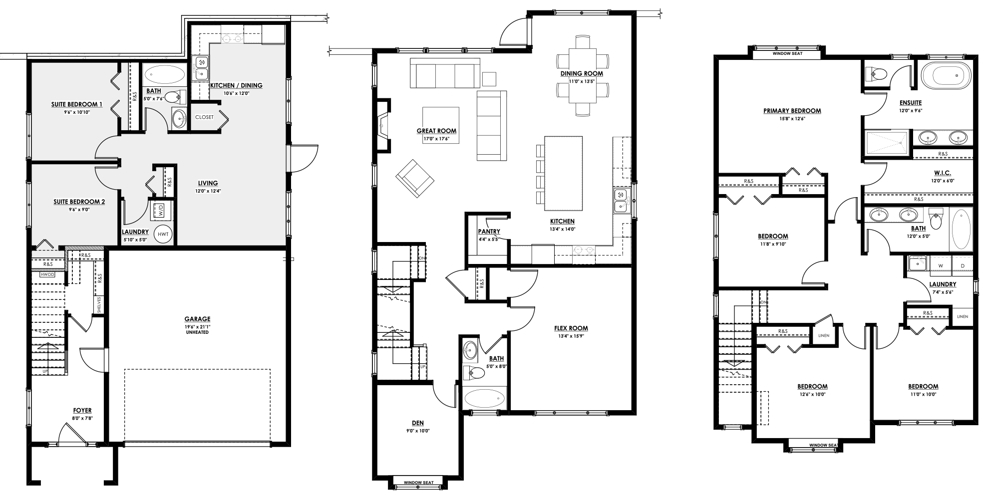
6 bedroom, 4 bath including 2 bedroom suite 3,222 sq. ft.

SOLD - The Delilah
The ‘Delilah’ offers 3,222 square feet of carefully planned living space, with a 2-bedroom mortgage helper suite. The open concept main floor living area features a professionally designed kitchen with a generous island and walk-in pantry. A bonus oversized separate family room or guest bedroom with closet is a very flexible and useful room not usually found in this market. Step out to the covered patio area and a private south facing back yard. Upstairs includes a beautiful primary suite and three more spacious bedrooms. The large primary bedroom has a cozy window seat, impressive walk-in closet and a magnificent ensuite with heated tiles, soaker tub and spa-like shower. Home includes a full laundry room with a sink and extra storage. Lower level includes a foyer and storage for the principal residence, and a well-appointed two-bedroom suite with very private entry.
Floorplans
The Delilah - SOLD

6 bedroom, 4 bath including 2 bedroom suite
Lower Floor ~ 851 sq. ft. | Main Floor ~ 1,224 sq. ft. | Upper Floor ~ 1,147 sq. ft.
Total: 3,222 sq. ft.